Фахферх №594

Цена строительства от 22 300 000 ₽* * Стоимость не является окончательной
Заявка на консультацию
  • Общая площадь 167 м2
  • Длина 10.5 м
  • Ширина 11.6 м
  • Материал стен Газобетон/пеноблок
  • Количество этажей 2
  • Подвал Нет
  • Мансарда без мансарды
  • Гараж Нет
  • Терраса Да
  • Проживание Круглогодичное
  • Количество комнат 5
  • Количество спален 4
  • Количество санузлов 2
  • Вид проекта дом
  • Застройщик ДМ ГРУПП
  • Архитектурный стиль Барнхаус
  • Отделка фасада Комбинированная
  • Крыша Двускатная
  • Можно купить домокомплект Нет
  • Модульный тип строения Нет
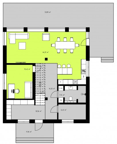
Планировки
Описание проекта

Дом сдается в отделке white box. Гипсовая штукатурка Knauf под обои. 

Характеристики: 

Дом: 167,4м2 (полезная площадь, без террасы и крыльца),

●  Потолки 2,85 -5,7м2;

●  4 спальни 

●  Кухня-столовая 40,31м2;

●  2 санузла;

●  Котельная 6,43м2;


комплектация «тёплый контур» стоимость по запросу

  • фундамент - жб плита ребристая;
  • стены - автоклавный газобетон;
  • перекрытия - деревянные;
  • кровля - утепленная, металлочерепица или профлист;
  • окна - 5 -ти камерный профиль кашированные;
  • отмостка - скрытая;
  • инженерка - закладные под ввод коммуникации. Разводка основной канализации. Септик переливной, 7 м3.

Комплектация «white bох» от 22 300 000 р.

  • комплектация «тёплый контур»;
  • фасад - декоративная штукатурка;
  • электрика - разводка электрики в котельной, подключение котельного оборудования. Заземление;
  • отопление - теплый пол + тёплые подоконники, разводка для датчиков автоматизации. Электро - котёл; водоснабжение - шитый полипропилен с латунными выходом для подключения;
  • чистовой пол - утепленная стяжка;
  • монтаж плитки в котельной;
  • штукатурка;
  • септик - переливной;
  • терраса и крыльцо жб

Выбор местоположения

Задать вопрос / написать нам

E-mail: domgis@mail.ru

Мы свяжемся с Вами в течение дня.

Тех. поддержка
Предмет обращения:
Тукущая страница

Мы свяжемся с Вами в течение дня.

Уведомление
Предмет обращения:
Тукущая страница
Обратный звонок
Обратный звонок
Выберите ваш город
Пожаловаться

Объявление опубликовано.
Изменения сохранены

Период публикации - бессрочный, при условии подтверждения актуальности каждые 50 дней. Уведомления будут отправляться на Вашу электронную почту.

Выберите причину снятия с публикации

Снятые с публикации объявления не участвуют в поиске и недоступны для подробного просмотра.

Для повторной публикации нажмите «Вернуть в публикацию»