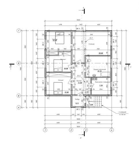
"Анэстас" - простой в строительстве дом с двускатной крышей, подойдет, также, для узкого участка.
Фасад в данном проекте можно легко поменять на любой декоративный материал (штукатурка, кирпич, фасадная плитка и т.п.). Также, по Вашему пожеланию, мы легко можем внести изменения в этот проект.
Фасад и внешний облик:
Комплектация:
"Теплый контур"
"Под чистовую"
"Под ключ"
Выбор местоположения
Мы свяжемся с Вами в течение дня.